Apartament 2 camere, decomandat, 56 mp. Et.3 Zona Bucovina
- Zona: Bucovina
- Suprafata utila: 56 mp
- Suprafata totala: 64 mp
- Camere: 2
- Strazi: Asfaltate
- Bai: 1
- Etaj: 3/4E
- Bucatarii: 1
- An Constructie: 1992
- Destinatie: Locuinta
- Disponibilitate: Disponibil
- Disponibilitate: Disponibil
- Confort: 1
- Compartimentare: decomandat
- Balcoane: 2
- Acces internet:Cablu ,
- Aer Conditionat:Aer Conditionat ,
- Bucatarie:Da ,
- Calorifere:Da ,
- Contorizare:Apometre ,Contor electric ,Contor gaz ,
- Destinatie:Locuinta ,
- Ferestre:PVC ,
- Geam baie:Nu ,
- Incalzire:Centrala proprie ,
- Interfon:Interfon ,
- Izolatii termice:Fara ,
- Lift:Nu ,
- Pereti:Faianta ,Lavabil ,
- Podele:Parchet ,
- Servicii:Administrare ,
- Strazi:Asfaltate ,
- Tip Bloc:Bloc ,
- Usa intrare:Metal ,
- Usi:Din Lemn ,
AVA ESTATE va propune spre vanzare un apartament cu 2 camere, decomandat, confort 1, situat la etajul 3 intr-un bloc cu 4 etaje, cu acoperis din tigla, bloc construit in 1992, in Zona Bucovina.
Blocul se afla intr-o zona foarte buna a orasului, cu numeroase puncte de interes: Parcul Bucovina, Pizzeria Pulcinela, Market Carrefour,
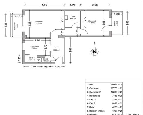
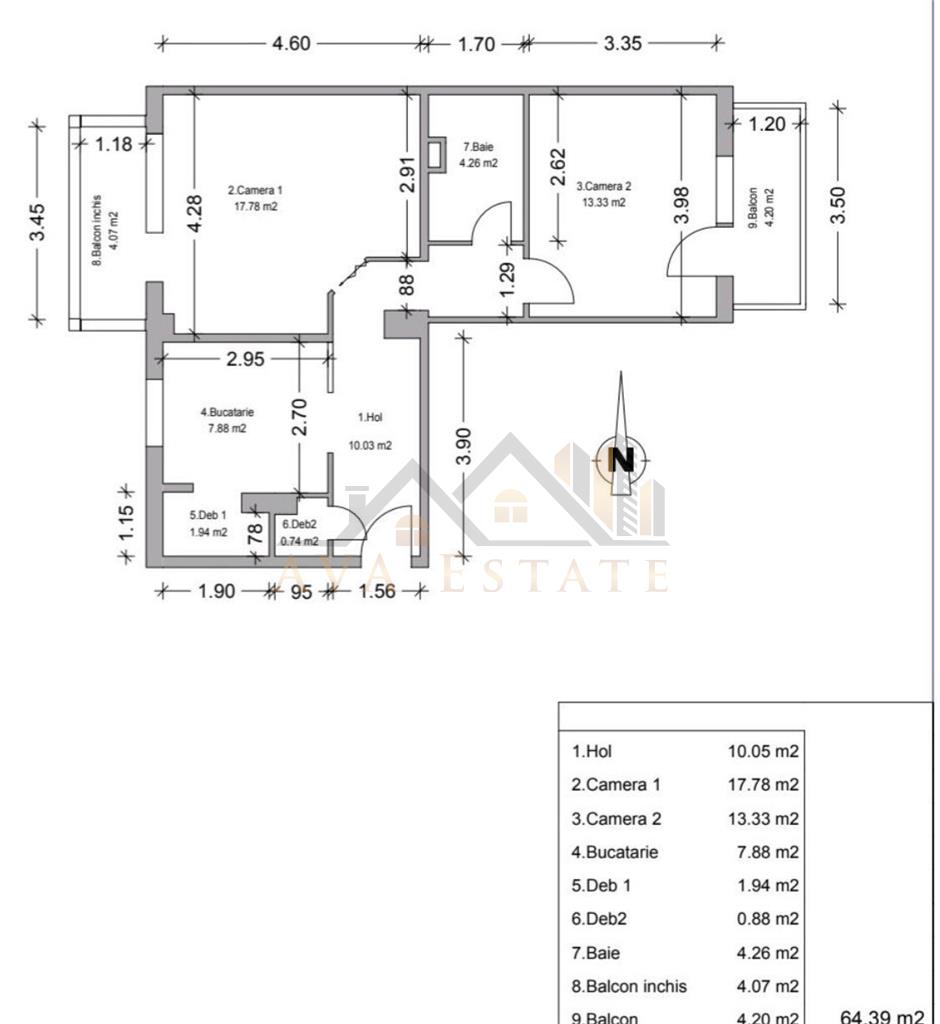
Apartamentul dispune de o suprafata utila de 56 mp + doua balcone de 8 mp.
Compartimentarea apartamentului fiind astfel:
- hol de acces
- debara
- bucatrie
- living cu balcon inchis in termopan
- dormitor cu balcon deschis
- baie cu cada si ventilatie mecanica
Apartamentul se vinde complet mobilat si utilat, avand nevoie de unele imbunatatiri.
Confortul termic se realizeaza prin intermediul centralei proprii pe gaz, iar pentru mentinerea unui aer racoros dispune de clima.
Pretul de vanzare este de 96.000 euro usor negociabil + comision agentie.
Va putem ajuta cu achizitionarea imobilului prin credit bancar, avand brokeri de credite ce va stau la dispozitie cu cele mai bune oferte pentru dumneavoastra, acest serviciu fiind complet gratuit.
Daca v-am starnit interesul, va asteptam cu drag la o vizionare. ID AVA263
vanzare
AVA ESTATE va propune spre vanzare un apartament cu 2 camere, confort 1 decomandat, situat la etajul 3 intr-un bloc cu 4 etaje, in Zona Lipovei. Ap
vanzare
AVA ESTATE va propune spre vanzare un apartament cu 2 camere, semidecomandat, confort 1, situat la etajul 1 din 4, intr-un bloc construit in anul
vanzare
AVA ESTATE va propune spre vanzare un apartament cu 2 camere, semidecomandat, confort 1, situat la etajul 8 din 8, in Zona Garii de Nord.








