Apartament 4 camere | 99 mp | Zona Punctele Cardinale
- Zona: Punctele Cardinale
- Suprafata utila: 90 mp
- Suprafata totala: 99 mp
- Camere: 4
- Bai: 2
- Etaj: parter/9E
- An Constructie: 1980
- Compartimentare: semidecomandat
- Balcoane: 2
- Geam baie:Da ,
AVA ESTATE vă propune spre vânzare un apartament cu 4 camere, semidecomandat, confort 1, situat la parterul înalt al unui bloc cu 10 etaje, în zona Punctele Cardinale.
Blocul se află într-o zonă excelentă, în imediata apropiere de: Piața Unirii, Bastion, Clinica Oro-Maxilo-Facială și Facultatea de Medicină și Farmacie.
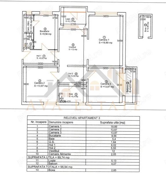
Apartamentul dispune de o suprafață utilă de 90 mp + 9 mp (reprezentând două balcoane). Compartimentarea este următoarea:
- Hol de acces;
- Bucătărie cu spațiu pentru depozitare;
- Baie de serviciu;
- Vestibul + logie;
- Living;
-Hol secundar;
- Dormitor 1;
- Dormitor 2 cu balcon;
- Baie principală prevăzută cu geam pentru aerisire.
Confortul termic se realizeaza prin intermediul centralei proprii pe gaz, iar pentru a mentine un aer racosros dispune de clima.
Pretul de vanzare este de 195.0000 euro + comision agentie.
Va putem ajuta cu achizitionarea imobilului prin credit bancar, avand brokeri de credite ce va stau la dispozitie cu cele mai bune oferte pentru dumneavoastra, acest serviciu fiind complet gratuit.
Daca v-am starnit interesul, va asteptam cu drag la o vizionare. ID AVA286
















